Rif: IMMO-126389913
SAN GIORGIO DI PIANO
BOLOGNA
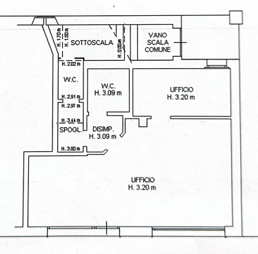
San Giorgio di Piano - Splendido Ufficio al Piano Terra con 2 vetrine fronte strada con affaccio sulla Via Galliera, in prossimità del nuovo supermercato a pochi passi dalla stazione ferroviaria - Disponibile da subito -
Consistenze
| Descrizione | Superficie | Sup. comm. |
|---|---|---|
| Principali | ||
| Ufficio - piano terra | 65 Mq | 65 Mqc |
| Totale | 65 Mqc | |
